Username:
Password:

BEHST Builders

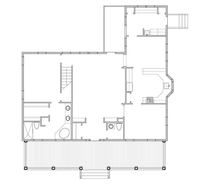
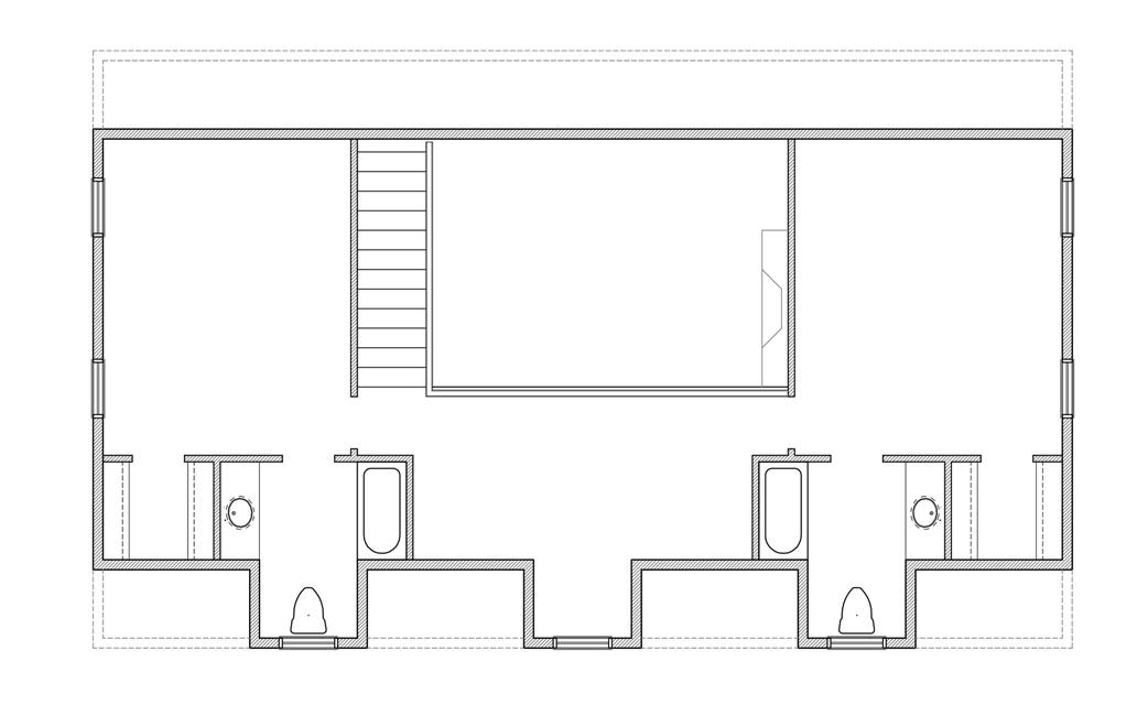
The Low Country Cottage


This cottage features another timeless front porch with an elegant front entry. The design boasts a first floor master suite and rear covered porch. Also includes a dining room that could be used as office. The mud room at rear is perfect for kicking off the beach sand before coming into the house.
Bedrooms: 3 / Baths: 2.5
Sq. Footage: 2,450